Panificadora Americana

Cuautitlán, Edo. México
2017
Colaborador: Arq. Jesús Alcántara
Proyecto

Expansión que honra la memoria colectiva.

En Cuautitlán, Estado de México, transformamos la Panificadora Americana en un proyecto que responde tanto a la tradición de la marca como a su necesidad de expansión. En colaboración con el Arq. Jesús Alcántara, concebimos un edificio que articula producción, venta y experiencia de consumo dentro de un entorno urbano en crecimiento.

Integramos el proyecto mediante una fachada que combina acabados contemporáneos con guiños clásicos, reafirmando la identidad histórica del negocio en la memoria colectiva de la comunidad. Nuestro concepto se centró en tres ejes: ampliar la capacidad productiva, mejorar la experiencia de compra y garantizar espacios dignos para los empleados.

Diseño que conecta operatividad eficiente y bienestar para empleados y clientes.

Diseño que combina calidez y responsabilidad ambiental.

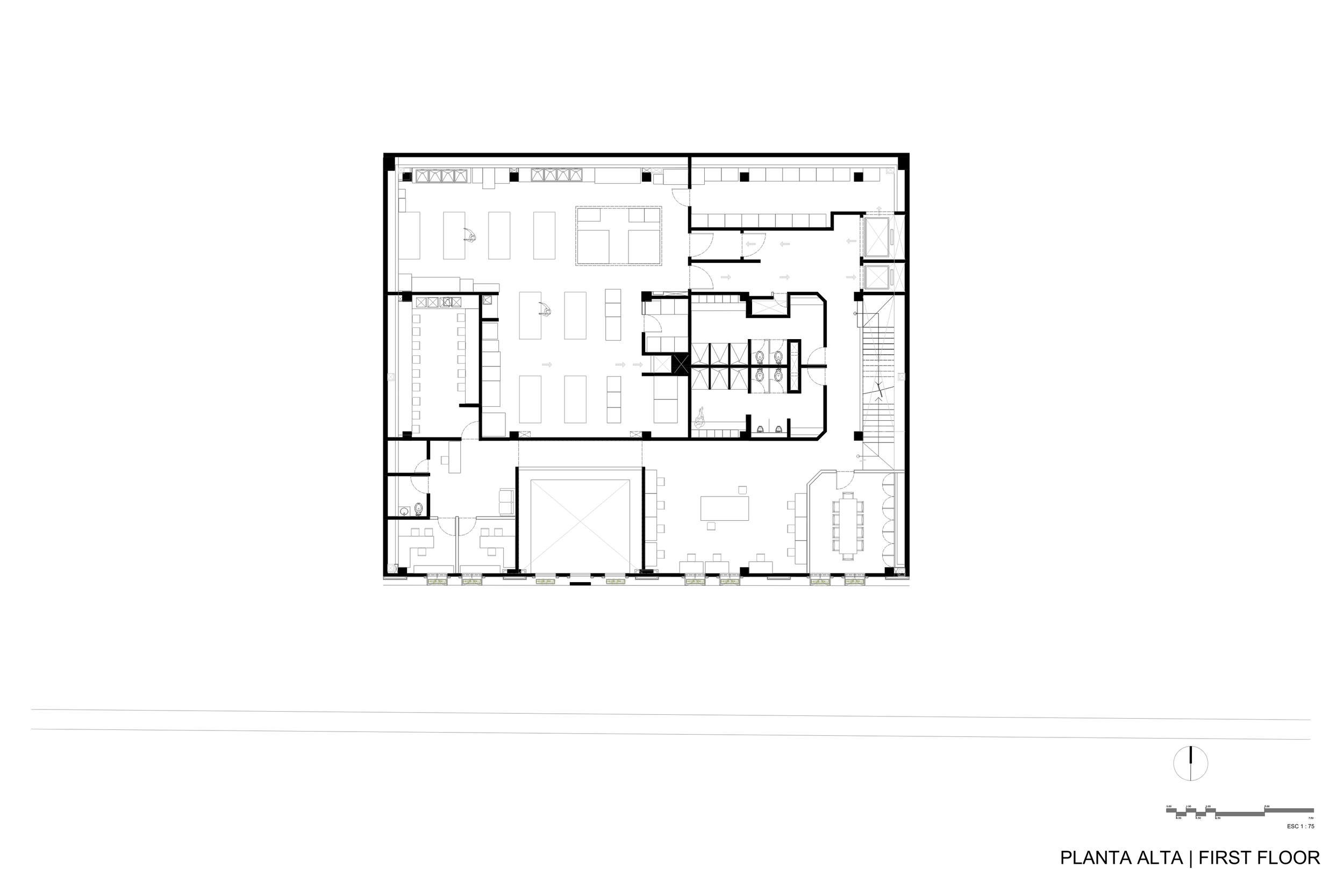
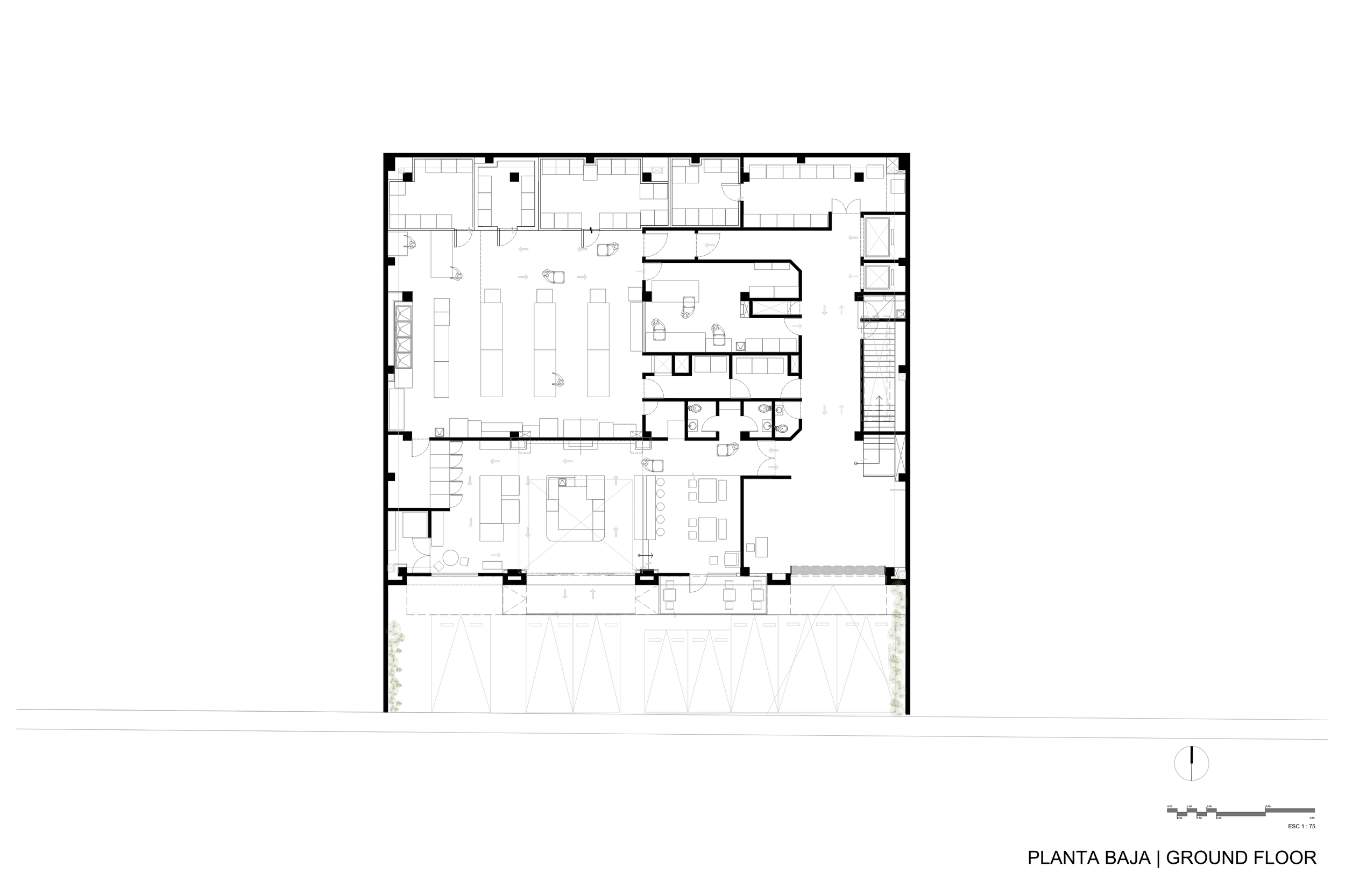
El programa arquitectónico se organiza en dos niveles: en planta baja, un acceso a doble altura con área de ventas, cafetería y parte de la producción; en planta alta, oficinas, salas de juntas y áreas de servicio para cerca de 50 empleados.

Para los materiales elegimos aplanados en tonos tierra, textiles en toldos, herrería y detalles metálicos que consolidan una imagen cálida y reconocible. En materia de sustentabilidad, optimizamos recursos en los procesos productivos y promovemos la separación de residuos, contribuyendo a una operación más responsable.

Anterior
Anterior

El Surtidor

Siguiente
Siguiente

Cocinas