El Surtidor

CDMX, 2019
Remodelación de fachadas
En proceso

Memoria que dialoga con el presente.

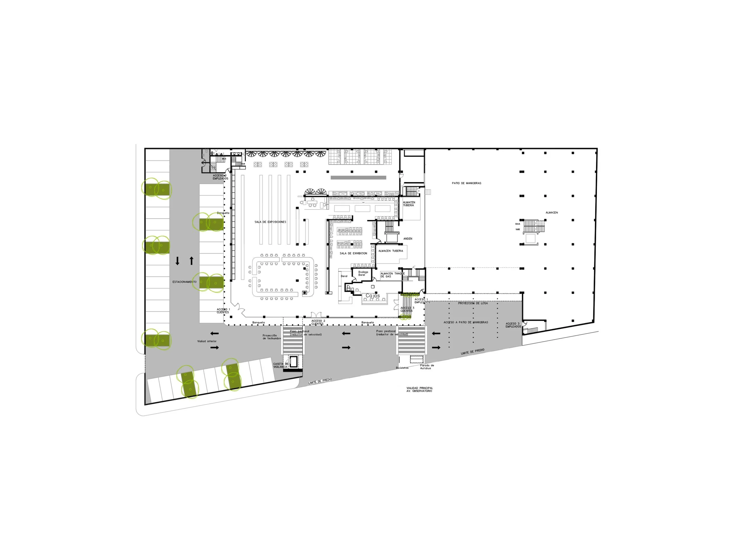
En Avenida Observatorio, en la Ciudad de México, intervenimos el proyecto El Surtidor, una tienda con décadas de presencia y tradición en un entorno urbano consolidado. En 2019 iniciamos una remodelación integral de sus fachadas, que concluimos parcialmente en 2022, con el objetivo de actualizar su imagen y fortalecer su relación con el espacio público.

Nuestra propuesta buscó insertar una nueva identidad arquitectónica mediante un lenguaje claro y contemporáneo, eliminando la saturación de anuncios que ocultaban la edificación y jerarquizando los accesos. Este gesto permitió dar mayor legibilidad al edificio y reforzar su vínculo con la calle.

Arquitectura clara y duradera que fortalece su vínculo con la ciudad.

Una identidad visual unificada para la marca.

El concepto se centró en la limpieza visual y en la repetición de elementos comunes que pudieran replicarse en distintas sucursales, estableciendo así una identidad unificada y coherente para la marca. El programa arquitectónico se limitó a la reorganización de accesos y fachadas comerciales, respetando la estructura original del inmueble.

En los materiales privilegiamos acabados sobrios, superficies lisas y tonalidades neutras que resaltan los puntos de acceso y refuerzan la claridad de las líneas arquitectónicas. Aunque no incorporamos tecnologías de certificación específicas, promovimos la sustentabilidad al reducir el uso de elementos temporales o de alto mantenimiento, apostando por soluciones duraderas y atemporales que simplifican la operación del edificio a lo largo del tiempo.

Anterior
Anterior

Americana - Comercial

Siguiente
Siguiente

Mobiliario - Residencial