Tecojotes

CDMX
2018
Remodelación

Transformación integral que renueva carácter y funcionalidad

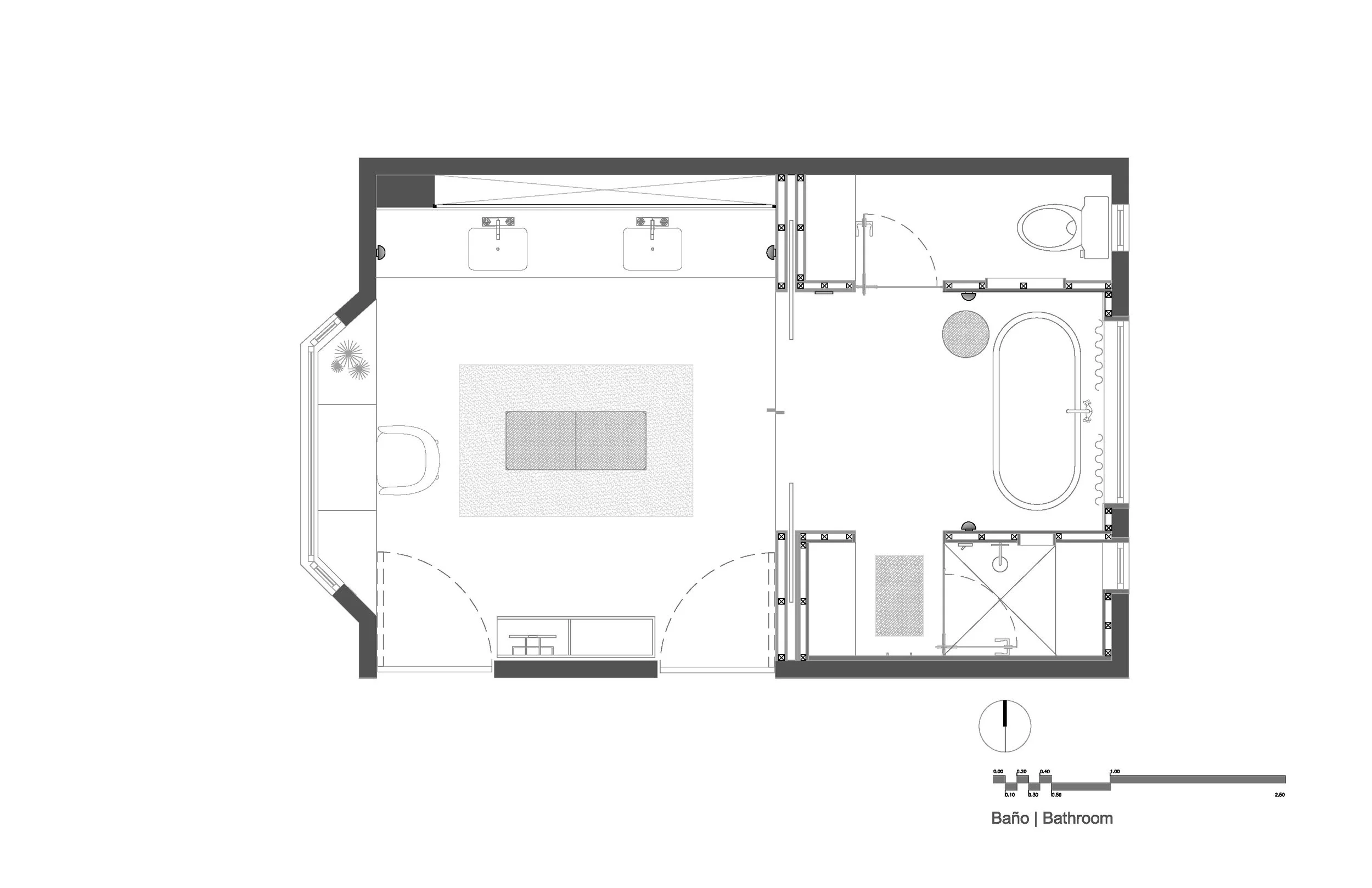
En Tejocotes, renovamos integralmente los espacios privados para transformar por completo el carácter del dormitorio y del baño principal, respondiendo a nuevas necesidades de uso con una propuesta arquitectónica contemporánea, cálida y equilibrada. En el dormitorio, concebido para dos adolescentes, eliminamos los revestimientos obsoletos y replanteamos la organización espacial a partir de una paleta neutra y clara —blancos cálidos, tonos arena y acentos en madera natural— que amplifican la luz y generan una atmósfera acogedora. Diseñamos mobiliario contemporáneo de líneas limpias y acabados naturales para optimizar el espacio y reforzar su carácter funcional sin perder calidez. La iluminación, pensada como recurso atmosférico, integramos luminarias colgantes, tiras LED para luz indirecta y lámparas de lectura que acompañan distintas actividades cotidianas.

Diseño contemporáneo que combina confort, calidez y optimización.

Materiales, luz y detalles que potencian la experiencia cotidiana

En el baño master, de amplias dimensiones, reconfiguramos por completo la distribución original, antes ineficiente y con escasa privacidad. Organizamos el espacio con una lógica más clara y funcional, sustituyendo el mobiliario voluminoso por carpintería contemporánea, ligera y en tonos claros, lo que amplía las circulaciones y potencia la percepción espacial. Reemplazamos el jacuzzi existente por una tina central que se convierte en el elemento protagónico, orientada estratégicamente hacia las áreas verdes para vincular el interior con el exterior y aprovechar las generosas entradas de luz natural.

La materialidad refuerza la atmósfera contemporánea: incorporamos cerámicos vidriados en tonalidades verdes que aportan frescura, grifería en acabado negro que genera contraste, y vidrio texturizado con herrería divisoria que delimita áreas sin sacrificar luminosidad, integrando privacidad, estilo y confort.

El resultado es un conjunto íntimo y armonioso, donde materiales, mobiliario e iluminación convergen para crear ambientes de descanso y renovación, sustituyendo por completo la apariencia sombría de los espacios originales y otorgando nueva vida a esta residencia.

Anterior
Anterior

Tepoztlán

Siguiente
Siguiente

El Surtidor